Borrar
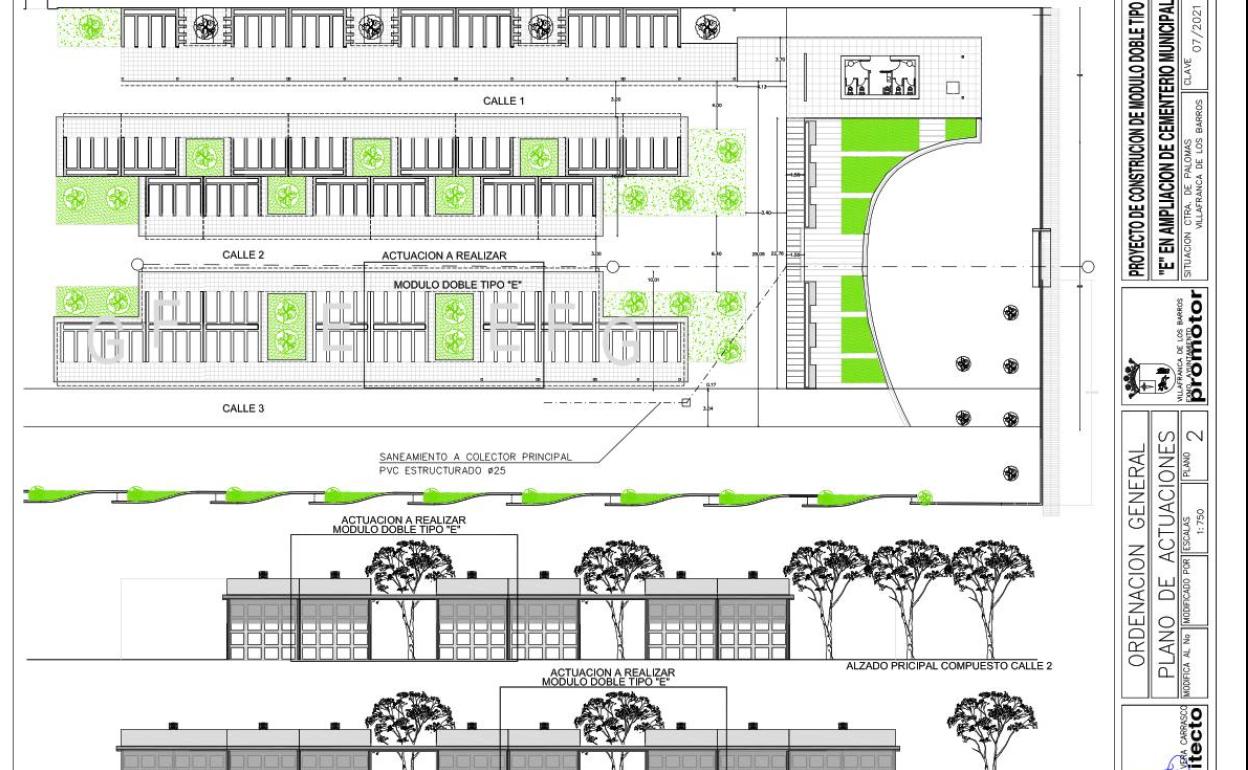
Plano del cementerio CEDIDA

El portal de Contrataciones del Estado publica la licitación de las obras de construcción de 64 nichos

La publicación se produjo el pasado día 2 de marzo. El presupuesto de licitación es de 103.439 € y el plazo de presentación de ofertas finaliza el 22 de marzo a las 14.00 horas

Miércoles, 9 de marzo 2022, 00:51

La concejalía de Urbanismo, Obras, Infraestructuras y Medio Ambiente responde a la nota de prensa que el grupo municipal socialista publicaba el pasado dos de marzo «exigiendo la construcción de nichos en el cementerio» pues decían «tan solo existían 54 disponibles».

«En la mañana del pasado día dos de marzo, el portal de Contrataciones del Estado publicó la licitación de las obras de construcción de 64 nichos en el cementerio municipal de Villafranca de los Barros con cargo al crédito extraordinario aprobado por el Pleno de la Corporación Municipal el pasado 4 de noviembre de 2021», asegura el concejal de Urbanismo, Obras, Infraestructuras y Medio Ambiente a través de un comunicado.

En él se explica a su vez que el presupuesto de licitación es de 103.439 € y el plazo de presentación de ofertas finaliza el 22 de marzo a las 14.00 horas.

En cuanto a la mejora de la cubrición de la zona de columbarios, cabe señalar que tras varios encuentros con familiares interesados, tanto por parte del Arquitecto Municipal como con el concejal responsable de Cementerio, «ya se tiene diseñada una solución técnica que se acometerá próximamente junto a las obras de los nichos».

Añade, «desde el Ayuntamiento se trabaja continuamente en el mantenimiento y mejoras de las instalaciones y servicios del cementerio municipal y por tanto se envía un mensaje de tranquilidad a la población en cuanto a la disponibilidad de nichos».

Y concluye, «en los últimos tres años, además de su continuo adecentamiento, se han introducido mejoras en el camposanto como pueden ser la disposición de agua corriente en los distintos puntos, la adquisición de escaleras más seguras, la mejora de pasillos y accesos, la elaboración de una normativa de construcción de panteones en la zona nueva, o la propia construcción de nuevos nichos. Próximamente se dotará de una plataforma portaféretros que facilite las inhumaciones a los operarios municipales».

Publicidad

Publicidad

Publicidad

Publicidad

Esta funcionalidad es exclusiva para suscriptores.

Reporta un error en esta noticia

* Campos obligatorios

hoy El portal de Contrataciones del Estado publica la licitación de las obras de construcción de 64 nichos

El portal de Contrataciones del Estado publica la licitación de las obras de construcción de 64 nichos